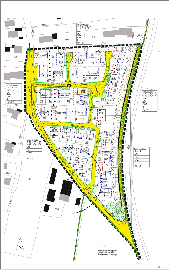
BEBAUUNGSPLAN BUCH NR 9
Im Süden des Inninger Ortsteils Buch am Ammersee entstand ein Neubaugebiet für 48 WE mit Einzel- und Doppelhausbebauung. Schwierigkeit dabei der gegenüberliegende landwirtschaftliche Betrieb, sowie die Staatsstraße die im Osten das Baugebiet begrenzt.

BEBAUUNGSPLAN ERDING Nr. 168
.....

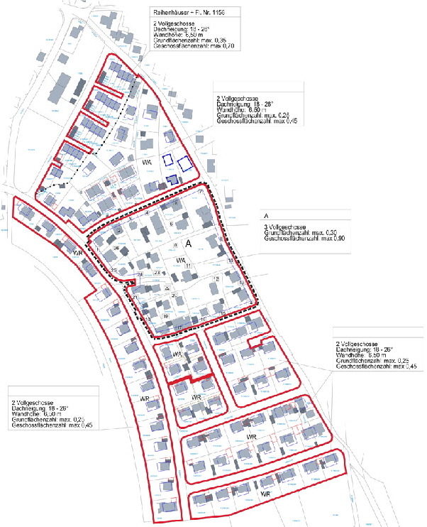
BEBAUUNGSPLAN INNING
SCHMAUTZER BÜCHL
Ein bestehender Bebauungsplan von 1967 wurde von uns überprüft und verschiedene Änderungs-wünsche eingearbeitet. Nachdem auch die noch zur Bebauung stehenden Flächen überprüft wurden, ergab sich der Vorschlag zu Aufhebung des gesamten Bebauungsplans.

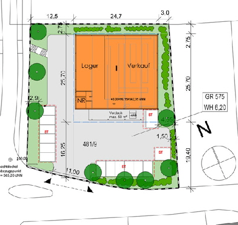
BEBAUUNGSPLAN UTTING
ANNAFELDSTRASSE
Dieser Bebauungsplan bildet den Ortsrand im Norden der Gemeinde Utting am Ammersee. Eine Schwiergkeit war dabei die landwirtschaftliche Nutzung nördlich der geplanten Bebauung
Architekt: Peter M. Gradl

ÄNDERUNG
BEBAUUNGSPLAN UTTING-ANNAFELD-STRASSE ZUM VORHABEN-BEZOGENEN BEBAUUNGSPLAN FRISTO
Zur Fixierung der spezifischen Wünsche der Gemeinde in Abstimmung mit dem Bauwerber wurde das letzte freie Grundstück überarbeitet und mit einem Vorhabenbezogenen Bebauungsplan überplant
Architekt: Peter M. Gradl
